
MIL-DTL-19379C(SH)
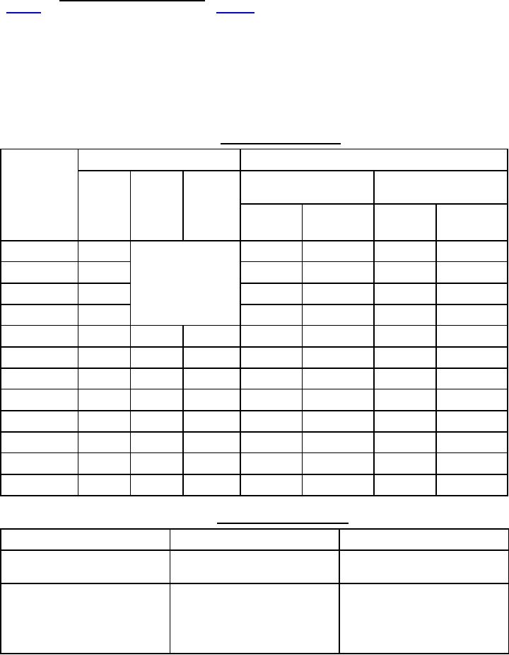
4.3.3.2 Sampling for conformance testing. For each lot, a quantity of mounts sampled in accordance with
table XI shall be subjected to verification tests in table XII to determine compliance with 3.5.2 and 3.5.3. Tests shall
be conducted in the sequence shown in table XII. For lots consisting of more than 40 mounts, a doubling sampling
plan shall be used. If the number of failures found on the first sample does not exceed the maximum allowable,
sampling shall be stopped and the lot shall be considered acceptable. If the number of failures found on the first
sample exceeds the allowable failures in the combined sample, the sampling shall be stopped and the lot rejected. If
the number of failures on the first sample exceeds the allowable number of first sample failures but does not exceed
the allowable failures in the combined sample, a second sample shall be selected. If the combined number of
failures found in the first and second sample do not exceed the allowable number of combined failures, the lot shall
be considered acceptable.
TABLE XI. Sampling conformance tests.
Sample quantities
Maximum allowable number of failures
First and
In first and second sample
Number of
In first sample quantity
second
quantity combined
First
Second
mounts in a
sample
sample
sample
lot
For any
For all tests
For any
For all tests
quantities
quantity
quantity
one test
combined
one test
combined
combined
2 to 8
3
0
0
-
-
9 to 15
4
0
0
-
-
Use single sampling
plan for these lots
16 to 25
5
0
0
-
-
26 to 40
6
0
0
-
-
41 to 65
4
4
8
0
0
1
1
66 to 110
5
5
10
0
0
1
1
111 to 180
6
6
12
0
0
1
1
181 to 300
8
8
16
1
1
1
2
301 to 500
10
10
20
1
1
2
2
501 to 800
12
12
24
1
1
2
3
801 to 1300
15
15
30
1
2
2
3
1301 to 3200
20
20
40
2
2
3
4
TABLE XII. Conformance verification tests.
Verification test
Test method
Requirement
1. Dynamic stiffness and resonant
frequency test
2. Static strength test in axial
Axial strength test shall be in
accordance with 4.4.2.2.2, except the
direction
peak load obtained shall be "Level
A" for all four loading-unloading
cycles.
8
For Parts Inquires call Parts Hangar, Inc (727) 493-0744
© Copyright 2015 Integrated Publishing, Inc.
A Service Disabled Veteran Owned Small Business