
MIL-DTL-18001L
D4
A
A
D3
D1
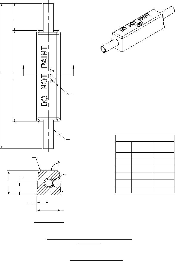
LETTERING ON EXPOSED FACE
TABLE OF DIMENSIONS
PLAIN STEEL
PIPE
METRIC
IMPERIAL
DIM
(INCH)
(MM)
7.50±.13
190.5±3.3
D1
TYP MOLD RAD
DRAFT
PERMITTED
2.00±.13
50.8±3.3
D2
PERMITTED
D3
12.00±.13
304.8±3.3
ØD6
D2
2.25±.13
57.2±3.3
D4
2
D5*
.62±.02
15.7±.5
D2
D6*
.84±.02
21.3±.5
ØD5
* CORRESPONDS TO ASTM A524
D2
1/2" SCHED 40 OR BS EN 10305-1
2
22MM STEEL PIPE SIZES.
D2
SECTION A-A
SKETCH H1: BAR SHAPE (PIPE CORE),
TYPE ZBP
MINIMUM WEIGHT = 8 LB / 3.6 KG
FIGURE 21. Zinc, bar, pipe core type ZBP.
34
For Parts Inquires call Parts Hangar, Inc (727) 493-0744
© Copyright 2015 Integrated Publishing, Inc.
A Service Disabled Veteran Owned Small Business