
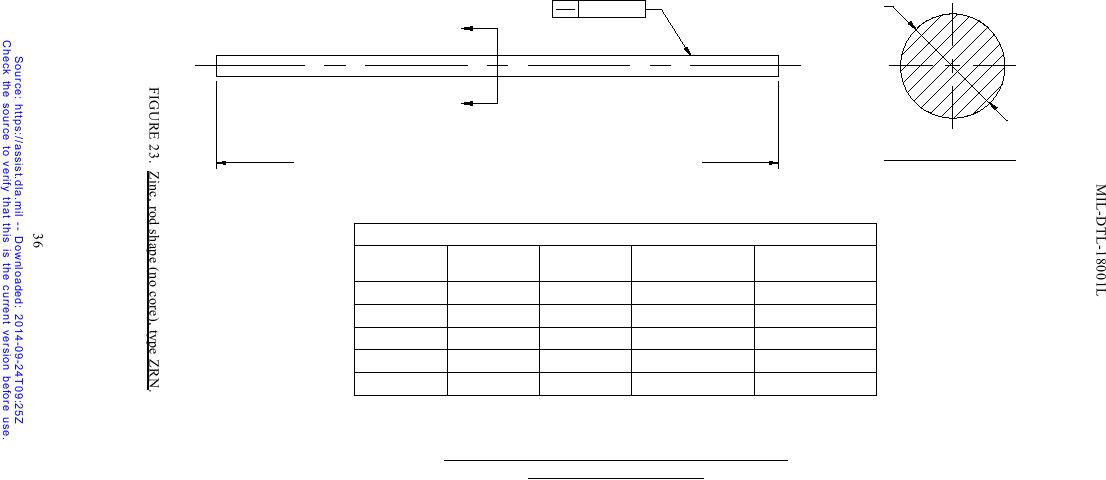
ØD1
.25" (6MM)
A
A
DETAIL SECT A-A
SPECIFY LENGTH 36.00±.25" (914±6MM) OR 72.00±.25" (1828±6.35MM)
TABLE OF DIMENSIONS
NOM WT PER FOOT NOM WT PER FOOT
NOM PIPE
D1 (INCHES)
D1 (MM)
LENGTH (LB)
LENGTH (KG)
SIZE
±0.020 INCH
±0.5 MM
1/8
.405
10.3
.40
.18
1/4
.32
.540
13.7
.71
3/8
1.10
.50
.675
17.1
1/2
.78
.840
21.3
1.71
3/4
1.050
26.7
2.67
1.21
SKETCH I: ROD SHAPE (NO CORE), TYPE ZRN,
36" LONG OR 72" LONG
For Parts Inquires call Parts Hangar, Inc (727) 493-0744
© Copyright 2015 Integrated Publishing, Inc.
A Service Disabled Veteran Owned Small Business