
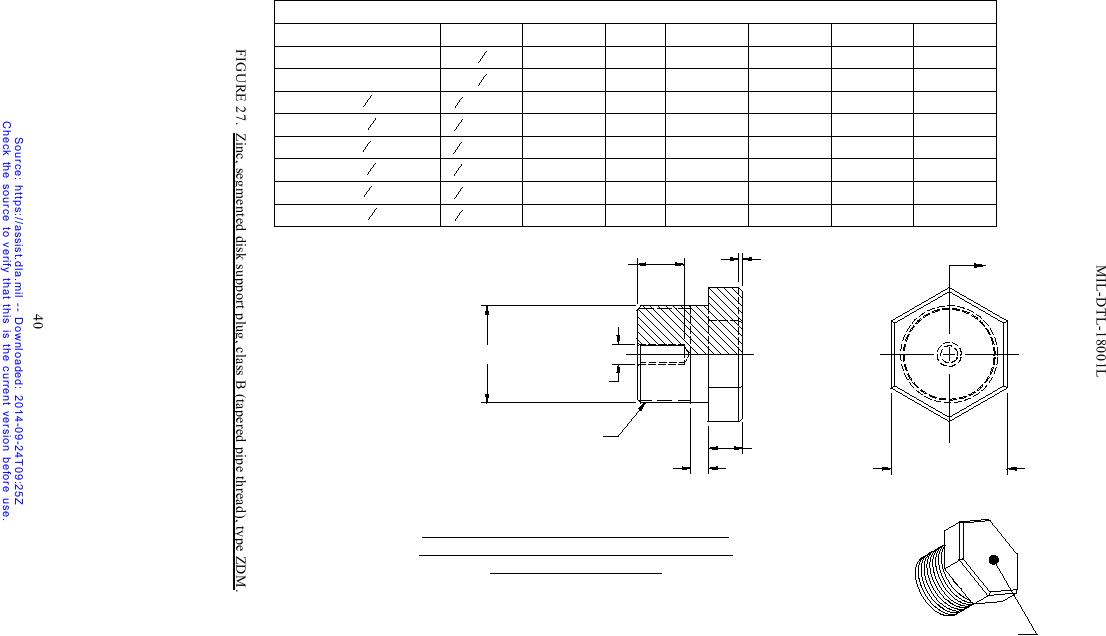
CLASS B PLUG DIMENSIONS
NOM PIPE SIZE, (UNITS)
D5
D3
D6
D7
D4
D1
D2
1"-1112NPT
NOM SIZE 1 (INCH)
1.315±.003
.500
.063
1.500
.188
.53±.03
1"-1112NPT
NOM SIZE 1 (MM)
33.40±.08
1.60
38.10
4.78
13.5±.8
12.7
NOM SIZE 3 4 (INCH)
3
1.050±.003
.375
.063
1.250
.188
.53±.03
4"-14NPT
NOM SIZE 3 4 (MM)
3
9.53
1.60
31.75
13.5±.8
26.67±.08
4.78
4"-14NPT
NOM SIZE 12 (INCH)
1
.840±.003
.375
.063
1.000
.125
.53±.03
2"-14NPT
NOM SIZE 12 (MM)
1
21.34±.08
9.53
1.60
25.40
3.18
13.5±.8
2"-14NPT
NOM SIZE 3 8 (INCH)
3
.675±.003
.313
.063
8"-18NPT
.750
.125
.53±.03
NOM SIZE 3 8 (MM)
3
8"-18NPT
17.15±.08
7.95
1.60
19.05
3.18
13.5±.8
6X D4x45°
D7
ØD2
#12-28UNF-2B
D1 PIPE THREAD
D3
PER ASME B1.20.1
HEX, D5 ACR
D6
FLATS
SKETCH J4: SEGMENTED DISK SUPPORT
PLUG, CLASS B (TAPERED PIPE THREAD),
FOR ANODE TYPE ZDM
1. SURFACE FINISH IS 125 RA MICRO-INCH (3.2
MICRO-METER).
2. STD TOLERANCE IS ±.016" (±.40 MM) UNLESS
ETCH LETTERS "ZDM"
OTHERWISE SPECIFIED.
AND NOM SIZE
For Parts Inquires call Parts Hangar, Inc (727) 493-0744
© Copyright 2015 Integrated Publishing, Inc.
A Service Disabled Veteran Owned Small Business